STARTSEITE
UNTERNEHMEN
LEISTUNGEN
PROJEKTE
AKTUELLES
KONTAKT
 

Projektdaten

Bauherr / Auftraggeber:
Fam. Carstens-Niehoff
Projektinformationen:
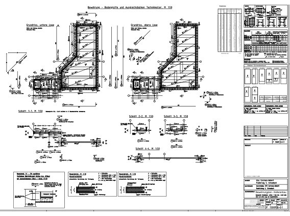
In Schwabach wird ein Technikkeller zur Unterbringung einer Lüftungsanlage an ein bestehendes Einfamilienwohnhaus angebaut. Der Keller wird auf der östlichen Gebäudeseite neben dem bestehenden Bauwerk eingegraben.
Der Anschluss der Lüftungsanlage an das Lüftungssystem des Hauses erfolgt über einen Tunnel, der vom Technikkeller ausgehend unter die Bodenplatte des Bestandsgebäudes hineinreicht. Die bestehende Bodenplatte stellt die Tunneldecke dar.
Kelleranbau an ein EFH

Projektinformationen

Unsere Leistungen:

- Statische Berechnungen
- Erstellen der Schal- und Bewehrungspläne
      
     
Kelleranbau an ein EFH