STARTSEITE
UNTERNEHMEN
LEISTUNGEN
PROJEKTE
AKTUELLES
KONTAKT
 

Projektdaten

Bauherr:
Al.-Krankenhaus Aachen
Planer:
bft COGNOS GmbH
Unsere Leistungen:
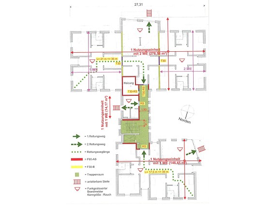
Erstellen des Brandschutzkonzeptes nach BauO NRW
"Betreutes Wohnen" in Aachen

Projektinformationen

Gebäude mittlerer Höhe

ungeregelter Sonderbau

Wohnhaus für psychisch behinderte Menschen, "Betreutes Wohnen"
  
"Betreutes Wohnen" in Aachen